![]()
Projetos Transversais
Promover a identificação e constituição de um grupo de parceiros locais e dinamização de reuniões periódicas deste Grupo, o chamado Grupo de Participação Local (GPL), visando uma participação mais representativa de todos os atores presentes na área da ARU-VS.
Fomentou-se o diálogo e o debate público, a circulação da informação e a construção partilhada das decisões, aspeto de grande relevância para a concretização das operações de requalificação urbana e ambiental desta área, bem como constituir um importante acervo de informação e da expetativa da população relativamente ao futuro da área, e como tal, indutora de estratégias a desenvolver no âmbito da elaboração do Plano de Urbanização e Programa de Ação Territorial da Vertente Sul do Concelho de Odivelas.
Relatório de Acompanhamento e Avaliação da Ação de Reabilitação Urbana | 2012
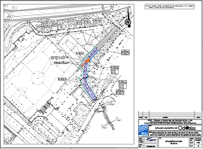
Requalificação do leito e margens de linhas de água existentes nos bairros integrantes da denominada Vertente Sul, com vista à melhoria das condições paisagísticas e ambientais e do funcionamento ecológico daquele território, nomeadamente no acompanhamento das ações cujos trabalhos intervenham em linhas de água da rede hidrográfica constituída pelos afluentes do Rio da Costa, com intervenção prioritária na Reestruturação do Escoamento das linhas de água afluentes ao Rio da Costa junto ao Complexo Lúdico-Desportivo do Bairro de Santa Maria.
Relatório de Acompanhamento e Avaliação da Ação de Reabilitação Urbana | 2012
Antes da intervenção
Projeto
Após intervenção
Realização de um estudo geológico e geotécnico da Vertente Sul do Concelho de Odivelas, para contribuir na elaboração dos termos de referência, quer para os projetos a desenvolver no âmbito das obras de consolidação das encostas, quer para os estudos geológico-geotécnicos a realizar no âmbito dos Planos de Pormenor de Reabilitação Urbana e nas operações de legalização que se venham a realizar.
Relatório de Acompanhamento e Avaliação da Ação de Reabilitação Urbana | 2012
Plano de trabalhos do Departamento de Geotecnia de 2015:
1. Realização de visitas de inspeção, visando a definição das condições locais, designadamente das áreas que apresentam maior suscetibilidade à perda de estabilidade da vertente no Bairro da Encosta da Luz, e elaboração de um relatório com a informação recolhida (concluído).
2. Identificação dos locais onde é necessário obter informação complementar (mediante a execução de furos de sondagens, piezómetros ou inclinómetros) e elaboração do respetivo Programa de trabalhos e correspondentes Especificações Técnicas (concluído);
3. Assessoria técnica para a apreciação das propostas para a realização dos trabalhos geotécnicos complementares (concluído).
4. Acompanhamento dos trabalhos geotécnicos complementares (concluído).
5. Realização de quatro campanhas de monitorização (concluído).
6. Elaboração de relatório com os resultados das campanhas de observação já realizadas. (concluído).
7. Elaboração de um relatório com a proposta de medidas de estabilização para o Bairro da Encosta da Luz (a entregar).
8. Assessoria técnica à CMO em reuniões com a Agência Portuguesa do Ambiente e a Comissão de Coordenação e Desenvolvimento Regional de Lisboa e Vale do Tejo no âmbito dos trabalhos em curso (a realizar).
9. Revisão do modelo de suscetibilidade anteriormente desenvolvido com base na informação recolhida em 1, 4 e 5 e elaboração de um relatório final (a entregar).
Relatório de Acompanhamento e Avaliação da Ação de Reabilitação Urbana | 2020
Plano de trabalhos do Departamento de Hidrologia - previsto realizar entre outubro e dezembro de 2015. Análise e apreciação crítica da informação existente relativa à drenagem e identificação das zonas sujeitas a inundações da Vertente Sul;
Relatório de Acompanhamento e Avaliação da Ação de Reabilitação Urbana | 2020
No âmbito do Plano de Trabalhos contratado ao LNEC contrato n.º 49/2017, foi produzida a Nota Técnica para descrição da metodologia para a elaboração da Atividade A, relativa ao Estudo hidrológico das cheias no Concelho de Odivelas e estudo hidráulico das inundações no rio da Costa. Nesse âmbito são também especificados os levantamentos hidro- topográficos necessários à execução do referido estudo hidráulico.
Relatório de Acompanhamento e Avaliação da Ação de Reabilitação Urbana | 2018
O contrato de prestação de serviços n.º 49/2017 estabelecido com o LNEC – Laboratório Nacional de Engenharia Civil, com vista á elaboração de estudos Hidrológicos e Hidráulicos para o Município de Odivelas, implica o fornecimento de dados e elementos topográficos dos cursos de água por parte da Câmara de Odivelas, como informação de base para a prossecução dos referidos estudos.
Considerado fundamental o fornecimento dos dados necessários para a prossecução dos estudos em referência foi desencadeado por parte da CMO a contratação externa a empresa de Topografia para obter os elementos designados pela nota técnica do LNEC.
Relatório de Acompanhamento e Avaliação da Ação de Reabilitação Urbana | 2017
Carta dos levantamentos topográficos
Inserido nas ações de ativação do espaço público, a ação “O Meu Bairro Ponto por Ponto” - oficina de costura decorreu nas instalações da ASPROMOBEL - Sede da Comissão de Moradores do Bairro Encosta da Luz, entre Abril de 2018 e Julho de 2019 sob orientação da designer de moda Sofia Vilarinho. Foi financiada pelo Contrato Local para Desenvolvimento Social Odivelas 3G - CLDS Odivelas 3G. Contou com o apoio técnico da CMO.
Esta oficina serviu de catalisador para a execução de um documento de registo processual que conta a história dos bairros na voz de mulheres que nele habitam “O meu bairro ponto por ponto. Autoconstrução do vestir e do habitar na Vertente Sul de Odivelas”.
O momento de encerramento de projeto CLDS Odivelas 3G “Pontos de Inclusão”, deu destaque ao workshop de costura, onde estiveram pessoas diversas, não apenas participantes no projeto, mas também representantes das entidades parceiras, entre as quais a Câmara Municipal. Foi convidado para o Professor José Luís Crespo FA-UL, integrado na equipa de investigação Gestual FA-UL.
Relatório de Acompanhamento e Avaliação da Ação de Reabilitação Urbana | 2019
Na sequência da intervenção dos muros de estabilização de taludes no bairro da serra da Luz e o arranjo dos espaços envolventes dos mesmos, nomeadamente junto à Rua D. João I na Serra da Luz, realizou-se uma proposta de execução de pintura dos mesmos em colaboração com o artista Smile. A proposta desenhada pelo artista foi discutida com a Associação de Moradores do Bairro da Serra da Luz, sem no entanto ter sido levada a cabo.
Construção desta via, cujo impacto na estruturação do território é fundamental para a requalificação urbanística, estabelece uma ligação entre a zona poente e nascente, permitindo uma mais fácil circulação nos bairros Encosta da Luz e Vale do Forno. A complementaridade com o arranjo paisagístico da envolvente e construção de via pedonal e Ciclável, possibilita uma melhoria das condições de mobilidade rodoviária e simultaneamente pedonal, nomeadamente o rápido acesso à estação de metropolitano.
Relatório de Acompanhamento e Avaliação da Ação de Reabilitação Urbana | 2013
Antes da Intervenção
Projeto
Após intervenção
Remodelação de sistemas de recolha de resíduos sólidos e reforço da infraestrutura da rede de abastecimento de água ao longo da Rua Padre Américo Monteiro de Aguiar, e nesta sequência, à instalação e implementação de sistemas de combate a incêndio.
Relatório de Acompanhamento e Avaliação da Ação de Reabilitação Urbana | 2012
Atualização da informação existente sobre a estabilidade da vertente no bairro da Encosta da Luz, a qual indicou a necessidade de trabalhos geotécnicos adicionais, com o objetivo de melhorar o modelo conceptual geológico e geotécnico do bairro em questão, que permitam complementar a informação existente e ajudar à decisão, com vista à elaboração de uma carta de aptidão, no âmbito dos elementos necessários para a aferição do modelo urbano a desenvolver para o processo de reconversão do Bairro da Encosta da Luz.
Relatório de Acompanhamento e Avaliação da Ação de Reabilitação Urbana | 2016
Num território com as características sociais da Vertente Sul do Concelho de Odivelas, o estabelecimento de ações e programas dirigidos a grupos carenciados de forma a promover a inclusão social, surge como necessidade complementar e indispensável a outros programas e ações de natureza material. A cultura é transversal aos outros domínios de intervenção no âmbito da reabilitação urbana, uma vez que contribui, em larga medida, para a difícil missão de organização num espaço.
As ações já realizadas, numa área de elevada miscigenação cultural pela presença de populações oriundas de várias origens, contribuem para o conhecimento e valorização mútua das especificidades de cada cultura, operacionalizando ações e mecanismos que permitam a sua interação e integração. Este conjunto de medidas procurou dar resposta a alguns problemas que afetam a Vertente e os seus habitantes na vivência de vida de todos os dias, promovendo a Inclusão Social e Valorização Cultural.
Relatório de Acompanhamento e Avaliação da Ação de Reabilitação Urbana | 2012
A economia e a população da Vertente Sul denunciam as reduzidas qualificações da população ativa, facto que constitui uma das principais fragilidades do território, pelo que a ação inserida neste contexto foi desenvolvida no sentido de dinamizar o mercado de trabalho, combatendo a debilidade estrutural da atual economia presente no território.
Relatório de Acompanhamento e Avaliação da Ação de Reabilitação Urbana | 2012
Bairro Vale do Forno
Construção de um equipamento de identidade e referência urbana com as valências de Atividade de Pré-Escolar com autorização definitiva por parte da DGEstE - DSR LISBOA E VALE DO TEJO, com capacidade de 75 crianças e Atividade de Centro de Dia com título definitivo na Segurança Social com uma capacidade de 80 utentes.
Atua em diversas áreas, nomeadamente no apoio às pessoas carenciadas através da Operacionalização do Banco Alimentar; do FEAC - Fundo Europeu de Auxílio às Pessoas Mais Carenciadas (FEAC) e da promoção de diversas atividades sociais, designadamente: aulas de dança, aulas de português para estrangeiros, aulas de inglês, aulas de ginástica, explicações.
Relatório de Acompanhamento e Avaliação da Ação de Reabilitação Urbana | 2012
Antes da Intervenção
Projeto
Início de intervenções em troços relacionados com o desenvolvimento do Parque Urbano Ribeirinho de Odivelas.
A realização deste troço do futuro Parque Urbano Ribeirinho de Odivelas no bairro do Vale do Forno, passa pela adoção de medidas de qualificação ambiental e valorização paisagística, designadamente, plantações, implementação de percursos pedonais/cicláveis e instalação de equipamento para diferentes atividades de recreio ativo e passivo, convívio, encontro e lazer.
Relatório de Acompanhamento e Avaliação da Ação de Reabilitação Urbana | 2024
Antes da intervenção
Projeto
Após Intervenção
O objetivo desta ação visou a requalificação urbanística integrada dos espaços e articulação de vários elementos urbanos existentes que eram disfuncionais – largo/praça central, mobilidade automóvel/circulação pedonal, hidráulica urbana/minimização de áreas inundáveis, enquadramento global paisagístico de lugar central e reforço da multifuncionalidade urbana com a introdução de espaço de parque infantil equipado, merecendo a atribuição de Prémio Municipal de Arquitetura e Espaço Público do ano de 2013.
Foi realizada a reabilitação ambiental e paisagística do troço antigo do Rio da Costa, a par com a erradicação das descargas de águas residuais para a linha de água, através da construção de emissário por um dos parceiros desta ação, SIMTEJO - Saneamento Integrado dos Municípios do Tejo e do Trancão, S.A., o que permitiu eliminar as condições de insalubridade existentes.
Foi ainda criado um Parque Infantil – conseguindo-se, simultaneamente, a recuperação total de um espaço completamente degradado e em abandono completo que é a situação que se verifica neste momento.
Relatório de Acompanhamento e Avaliação da Ação de Reabilitação Urbana | 2024
Antes da intervenção
Projeto
Após intervenção Largo da Saudade
Parque infantil
Encontra-se finalizada a contratação de serviços pela Câmara Municipal de Odivelas ao Laboratório Nacional de Engenharia Civil abrangendo os domínios da Geotécnica que visava um conjunto de atividades com o objetivo de apoiar a C.M. Odivelas no domínio da geotécnica para as soluções a desenvolver especificamente para a AUGI-Encosta da Luz bem como a revisão da carta de suscetibilidade ao movimento de terrenos na Vertente Sul de Odivelas a acompanhar os estudos na temática “riscos” do Plano de Urbanização da Vertente Sul em desenvolvimento.
Decorrente destes trabalhos finalizados, a CMO contratualizou com o LNEC os planos de trabalho que contam abranger a mesma metodologia aplicada ao bairro Encosta da Luz, para outros Bairros da Vertente Sul, como forma de antecipar e apoiar os processos de reconversão das AUGI, nomeadamente a “Elaboração da Carta de Aptidão à Construção no Bairro Vale do Forno”.
Bairro Encosta da Luz
Equipamento de apoio à população com as valências de espaço internet, atendimento psicossocial, formação, eventos culturais, entre outros. Pretendeu-se que a integração deste equipamento no espaço público contribuísse para a requalificação da imagem urbana, quer pelo cuidado que apresenta na sua imagem, quer através da criação de um espaço verde envolvente cuidado e equipado com mobiliário urbano. O seu objetivo é garantir a prestação de vários serviços, não só à população do Bairro Encosta da Luz mas também, à restante população da Vertente Sul de Odivelas.
Relatório de Acompanhamento e Avaliação da Ação de Reabilitação Urbana | 2012
Projeto
Antes da intervenção
Após intervenção
A Rua Padre Américo Monteiro de Aguiar, é um arruamento estruturante no contexto territorial da Vertente Sul, promovendo a ligação rodoviária e pedonal dos bairros AUGI da Encosta da Luz, Quinta do José Luis, Serra da Luz e Bairro de Sta. Maria, efetuando o eixo de ligação entre a cidade de Odivelas através das Patameiras e a vila da Pontinha, bem como a ligação á estrada da Paiã.
É nesse contexto que foi proposto realizar a requalificação do troço correspondente ao início do tabuleiro do viaduto que liga Odivelas/patameiras á Vertente Sul/Bairro da Encosta da Luz, até ao limite deste bairro com o Bairro da Quinta do José Luis, introduzindo a dotação e alargamento de espaços de circulação pedonal, implementação de estacionamento regulado, e medidas de acalmia de trânsito.
Projeto
Antes de intervenção (esq. Nascente/Poente; dir. Poente/ Nascente)
Intervenção em Curso sentido nascente poente - Acessos pedonais e paragem Bus
Os arruamentos do Bairro Encosta da Luz, nomeadamente a Rua do Comércio, Rua das Flores, Rua da Santo António, Rua da Felicidade e Rua de Portugal foram alvo de intervenções de conservação, designadamente na dotação de passeios onde não existiam bem como a beneficiação dos existentes.
Foram ainda verificadas as redes de saneamento quanto ao seu estado de funcionamento com o apoio dos SIMAR e posteriormente efetuados trabalhos de reparação dos pavimentos e o seu asfaltamento.
Estado geral antes da intervenção
Após intervenção
Bairro Quinta do José Luís
Qualificação das redes de abastecimento de Água e de Saneamento na Rua Rainha D. ª Amélia e reperfilamento do arruamento mediante a pavimentação e introdução de acessos pedonais e regulação de parqueamento automóvel.
Relatório de Acompanhamento e Avaliação da Ação de Reabilitação Urbana | 2018
Local antes da intervenção
Durante a intervenção
Após a intervenção
Bairro Serra da Luz
No seguimento identificação de perigosidade para a circulação de pessoas e bens com risco de interrupção de circulação viária na rua D. João I, a Comissão de Administração Conjunta da AUGI do Bairro da Serra da Luz solicitou a colaboração da Câmara Municipal de Odivelas, na realização de estudo geológico e geotécnico da zona a fim de analisar a estabilidade da encosta e de identificar a capacidade mecânica do terreno, de forma a programar a execução de empreitada de estabilização do talude existente entre a Rua D. Fernando e a Rua D. João I.
Local da intervenção
Rua D. João I e Rua D. Fernando – Bairro da Serra da luz
Relatório de Acompanhamento e Avaliação da Ação de Reabilitação Urbana | 2017
Local antes da intervenção – nascente/poente e poente/nascente
Localização e esquema de trabalhos
Aspeto dos trabalhos
Contratação de serviços ao Laboratório Nacional de Engenharia Civil abrangendo os domínios da Geotecnia tendo em vista a prossecução da recolha de dados sobre a instrumentação entretanto instalada, com o objetivo da obtenção e conclusão do “Reconhecimento Geológico e Geotécnico e de instrumentação do Bairro Vale do Forno e do Bairro Serra da Luz “(contrato de prestação de serviços n.º 110/2019) coincidente com a UOPG2 e UOPG5 do Plano de Urbanização da Vertente Sul.
Esta prestação de serviços refere-se à realização de duas campanhas semestrais (no final do período chuvoso e do período estival) de leitura da instrumentação instalada (inclinómetros) aquando da realização da empreitada de prospeções geotécnicas e instalação de instrumentação, assumida pelas Comissões de Administração Conjunta das AUGI do Bairro Vale do Forno e do Bairro Serra da Luz, bem como nos instrumentos que já existiam no terreno, para obtenção de resultados atualizados sobre o comportamento dos terrenos das delimitações das AUGI do Bairro Vale do Forno (UOPG2 do PU-VERSUL) e do Bairro Serra da Luz (UOPG5 do PU-VERSUL), na prossecução da metodologia já estabelecida anteriormente para o Bairro Encosta da Luz (UOPG3 do PU-VERSUL).
Os trabalhos encontram-se desenvolvidos dentro dos prazos, tendo sido efetuadas leituras da instrumentação instalada (inclusive a de referência) e emitida a correspondente faturação.
Espaço Público Urbano Multifuncional com mobiliário e equipamento de apoio a Atividades de Estadia, Lazer e Recreio com capacidade para promover convívio e intercâmbio cultural no Bairro da Serra da Luz.
Relatório de Acompanhamento e Avaliação da Ação de Reabilitação Urbana | 2012
Projeto
Antes da intervenção
Depois da Intervenção
Qualificação e integração do espaço na rede de espaços públicos qualificados do bairro, passando pela instalação de um equipamento ligeiro de construção modular para a sede da referida associação e formalização de estacionamento, circulações pedonais, área de estadia e espaço para localização de contentores RSU.
Relatório de Acompanhamento e Avaliação da Ação de Reabilitação Urbana | 2015
Local da Intervenção
Projeto
Antes da intervenção
Depois da intervenção
A intervenção tem um caráter estruturante no principal eixo viário, Rua Padre Américo Monteiro de Aguiar, mediante o ordenamento de estacionamento desregrado existente no local, a formalização de circuitos pedonais anteriormente precários ou inexistentes, localização e formalização de ilhas de contentores RSU e Ecopontos, formalização da paragem de transporte público mediante plataforma de paragem BUS e colocação de abrigo de espera e qualificação da frente urbana do arruamento com a implantação de alinhamento arbóreo e espaço de estadia pelo aumento do passeio mediante o alinhamento (muros) das construções existentes.
Relatório de Acompanhamento e Avaliação da Ação de Reabilitação Urbana | 2015
Local antes da intervenção
Projeto
Após Intervenção
A intervenção tem um caráter estruturante no tecido urbano que se pretende replicar em outros locais em acompanhamento, sendo que este tipo de intervenção contribui de forma expressiva para ordenar o estacionamento no Bairro, a formalização de ilhas de contentores RSU, bem como a requalificação da frente de arruamento, promovendo a valorização das circulações pedonais.
Face ainda à inexistência de drenagem de águas pluviais no troço da Rua D.ª Maria II, foi executada a rede de drenagem de águas pluviais, com o acompanhamento dos SIMAR e asfaltamento daquele arruamento.
Relatório de Acompanhamento e Avaliação da Ação de Reabilitação Urbana | 2017
Antes da intervenção
Projeto
Após intervenção
No âmbito dos estudos e projetos de consolidação de encostas da Vertente Sul, a CMO em Parceria com a Comissão de Administração Conjunta do Bairro da Serra da Luz, iniciou estudos específicos para estabilizações de encostas onde se localizam infraestruturas urbanas e acessos viários.
Estes estudos indicam a realização de projetos para locais identificados, para a estabilização dos taludes.
Relatório de Acompanhamento e Avaliação da Ação de Reabilitação Urbana | 2017
Identificação das Intervenções no local
Empreitada de estabilização do Muro de contenção existente entre a Rua D. Afonso VI e A Rua D. Manuel I, que apresentava indícios de rotura e de inclinação.
Relatório de Acompanhamento e Avaliação da Ação de Reabilitação Urbana | 2018
Extrato de projeto
Antes da Intervenção
Durante a intervenção
Após intervenção
Empreitada de estabilização do Muro de contenção existente entre a Rua D. João I e a Rua D. Afonso VI, permitindo a criação de uma bolsa de estacionamento e a instalação de um espaço de estadia e lazer, dotado de equipamentos bio-saudáveis.
Relatório de Acompanhamento e Avaliação da Ação de Reabilitação Urbana | 2019
Extrato de Projeto
Local antes da Intervenção
Local após Intervenção
Estabilização do Muro de contenção existente entre a Rua D. João I e a Rua D. Afonso VI, permitindo cria um espaço de atravessamento pedonal, espaço de colocação de uma bateria de RSU na parte superior e a criação de uma bolsa de estacionamento na parte inferior, já ao nível da Rua D. Afonso VI.
Relatório de Acompanhamento e Avaliação da Ação de Reabilitação Urbana | 2019
Local antes da Intervenção - Vista Norte/Sul
Local antes da Intervenção - Vista Sul/Norte
Extrato de Projeto
Local após Intervenção – vista Norte /Sul
Bairro Quinta das Arrombas
(sem conteúdo)
Bairros Sociais do Estado - Bairro Menino de Deus e Bairro de Santa Maria
O Complexo Lúdico Desportivo do Bairro Santa Maria detém agora condições e valências que vão desde a prática de atividades individuais e informais até às modalidades coletivas e formais, pelo que a sua integração e contributo para a estabilização do território passam, em grande parte pela promoção, inclusão e identificação da população residente com os espaços e equipamentos públicos de referência de recreio e lazer. Consistiu a intervenção em requalificação do campo desportivo existente, através da colocação de relvado sintético e introdução de postes de Iluminação e balneários.
Relatório de Acompanhamento e Avaliação da Ação de Reabilitação Urbana | 2012
Projeto
Antes da intervenção
Após a intervenção
As obras de Requalificação dos Espaços Públicos dos Bairros de Habitação Social do Estado (Bairro de Santa Maria e Menino de Deus), correspondem a três áreas de intervenção:
• Largo das Casas de São José – Orçamento Participativo OP2018/2019;
• Espaço central, zona de união entre as instalações desportivas da coletividade União Desportiva e Recreativa Santa Maria;
• Envolvente às Casas do Menino de Deus.
Os conjuntos habitacionais situados nestes locais estão atualmente sob gestão do Instituto da Habitação e Reabilitação Urbana (IHRU) e destinam-se a proporcionar alojamento à população desfavorecida.
As ações de intervenção previstas num processo de regeneração destas áreas passam pela requalificação do espaço público de usufruto coletivo e a sua dotação de capacidade e condições para cumprir as suas funções de estadia, recreio e lazer, e que possa contribuir para a promoção da identidade coletiva destes espaços e seus residentes. Por outro lado, procura-se que seja ao mesmo tempo um catalisador também para as atividades sociais e económicas que já estão instaladas, mas que necessitam de mais condições para que se possam desenvolver.
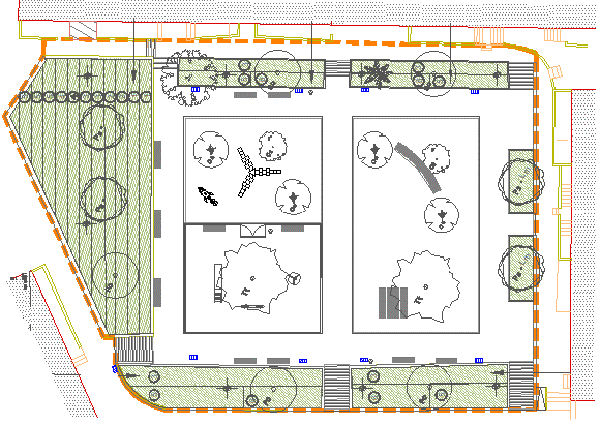
1) LARGO DAS CASAS DO BAIRRO DE SÃO JOSÉ
Este é um espaço utilizado maioritariamente pelos residentes mais próximos devido à sua localização. Tendo outrora, albergado um espaço desportivo, atualmente é um espaço desprovido de qualquer equipamento, com pouca capacidade de atração mesmo para aqueles que residem neste local.
Já foi concluída uma zona dotada de um parque infantil e um espaço de estadia com ensombramento adequado.
A intervenção paisagística contemplou:
a) A requalificação completa da estrutura existente do largo (muros, lancis, pavimentos), com a criação de dois espaços distintos: parque infantil e área de estadia;
b) Plantação de árvores;
c) Vegetalização dos taludes;
d) Implementação de um sistema de rega automático para todos os espaços verdes, inclusive as árvores em caldeira;
e) Requalificação da iluminação pública.
Extrato de projeto
Intervenção concluída
2) ESPAÇO CENTRAL
Esta obra desenvolve-se em torno da Rua Padre Américo Padre Monteiro. Do lado Norte existem as instalações da coletividade e equipamentos desportivos. Do lado Sul o edificado composto por comércio e restauração. Os passeios têm larguras muito reduzidas condicionando o funcionamento desta frente comercial.
Redesenhar-se-á o arruamento afastando-o dos edifícios aumentando as zonas pedonais permitindo assim valorizar o peão. Criar-se-á duas bolsas de estacionamento. Esta intervenção será considerada uma Zona 30 com introdução de medidas de acalmia de tráfego e uma plataforma elevada.
A intervenção paisagística prevista para o Espaço Central contempla:
f) Plantação de árvores e complemento dos existentes sempre quanto possível.
g) Criação de áreas de sombra para a praça.
h) Criação de espaços verdes
i) Integração do espaço central na paisagem envolvente
j) Implementação de um sistema de rega automático para todos os espaços
Extrato de projeto
Intervenção em curso
3) CASAS DO MENINO DE DEUS
A edificação neste Bairro, para além de se desenvolver em bandas habitacionais, desenvolve-se em socalcos devido à pendente muito acentuada.
O acesso principal aos lotes é garantido por um passeio contínuo que remata o topo dos taludes.
Existe uma pequena bolsa de estacionamento na base da colina que serve maioritariamente a banda habitacional mais próxima (Bloco A), o restante estacionamento é feito no terreno existente entre edifícios.
Reorganizou-se o estacionamento no arruamento principal e promoveu-se o uso do espaço público para convívio dos moradores através da instalação de um jardim infantil.
A intervenção contemplou:
a) Criação de um alinhamento de árvores completo para a avenida Fundação Calouste Gulbenkian;
b) Marcação da entrada de cada edifício;
c) Revestimentos dos taludes integrados na zona de intervenção;
d) Implementação de um sistema de rega automático para todos os espaços, inclusive as árvores em caldeira
e) Instalação de um jardim infantil
Extrato de projeto
Intervenção concluída nas circulações pedonais e ordenamento de estacionamento na Av. Calouste Gulbenkian
Intervenção concluída - Espaço de Recreio e Lazer, Bairro Menino de Deus